価格 |
2,880万円 |
||
|---|---|---|---|
間取 |
4LDK |
築年月 |
2026/06(建築予定) |
建物面積 |
99.78m²(30.18坪) |
土地面積 |
130.22m²(39.39坪) |
所在地 |
高崎市石原町 |
||
周辺環境 |
JR高崎駅まで 徒歩35分 2,800m |
お電話でのお問い合わせ
物件番号:16358
お電話でお問い合わせの際は、物件番号をお伝えください。
027-370-0166
営業時間:9:30 AM - 8:00 PM
定休日:年末年始
ポイント
POINT
☆物件詳細☆
高崎市石原町 新築一戸建て 寺尾小学校 寺尾中学校
《設備》
東京電力(電力自由) 公営水道 公共本下水 都市ガス
《教育施設》
寺尾小学校まで約750m(徒歩11分) 寺尾中学校まで約650m(徒歩9分) 片岡中央保育園まで約1600m(徒歩20分)
《商業施設》
ミニストップ高崎片岡町店まで約1600m(徒歩21分) ファミリーマート高崎石原町店まで約500m(徒歩7分) ローソン高崎片岡町一丁目店まで約2000m(徒歩28分) とりせん石原店まで約1600m(徒歩21分) ドラッグスギ片岡町店まで約1900m(徒歩27分) フレッセイ片岡町店まで約1700m(徒歩23分)
《その他》
高崎石原局まで約1200m(徒歩17分) 群馬銀行高崎西支店まで約2900m(徒歩40分) 高崎信用金庫西支店まで約1700m(徒歩23分) 武井小児歯科医院まで約1200m(徒歩17分) 長谷川医院(耳鼻咽喉科)まで約1200m(徒歩17分) いしはら歯科医院まで約1300m(徒歩18分) 松岡病院(胃腸科・外科)まで約1600m(徒歩22分) 弓皮ふ科医院まで約1800m(徒歩25分)
《備考》
駐車場2台可 フラット35対応 フラット35S対応 浴室乾燥機付き 温水洗浄便座1F・2F 大型洗面化粧台(ハンドシャワー付き) ユニットバス(1坪タイプ) 浄水器 24時間換気 カラーTVインターホン システムキッチン(人造大理石使用) 洗面化粧台1階シャンプードレッサー ユニットバス(セミオート給湯・換気扇) 全居室ペアガラス アイディホーム施工 設計住宅性能評価書取得 建設住宅性能評価書取得 長期優良住宅
高崎市石原町 新築一戸建て 寺尾小学校 寺尾中学校
《設備》
東京電力(電力自由) 公営水道 公共本下水 都市ガス
《教育施設》
寺尾小学校まで約750m(徒歩11分) 寺尾中学校まで約650m(徒歩9分) 片岡中央保育園まで約1600m(徒歩20分)
《商業施設》
ミニストップ高崎片岡町店まで約1600m(徒歩21分) ファミリーマート高崎石原町店まで約500m(徒歩7分) ローソン高崎片岡町一丁目店まで約2000m(徒歩28分) とりせん石原店まで約1600m(徒歩21分) ドラッグスギ片岡町店まで約1900m(徒歩27分) フレッセイ片岡町店まで約1700m(徒歩23分)
《その他》
高崎石原局まで約1200m(徒歩17分) 群馬銀行高崎西支店まで約2900m(徒歩40分) 高崎信用金庫西支店まで約1700m(徒歩23分) 武井小児歯科医院まで約1200m(徒歩17分) 長谷川医院(耳鼻咽喉科)まで約1200m(徒歩17分) いしはら歯科医院まで約1300m(徒歩18分) 松岡病院(胃腸科・外科)まで約1600m(徒歩22分) 弓皮ふ科医院まで約1800m(徒歩25分)
《備考》
駐車場2台可 フラット35対応 フラット35S対応 浴室乾燥機付き 温水洗浄便座1F・2F 大型洗面化粧台(ハンドシャワー付き) ユニットバス(1坪タイプ) 浄水器 24時間換気 カラーTVインターホン システムキッチン(人造大理石使用) 洗面化粧台1階シャンプードレッサー ユニットバス(セミオート給湯・換気扇) 全居室ペアガラス アイディホーム施工 設計住宅性能評価書取得 建設住宅性能評価書取得 長期優良住宅
物件詳細DETAIL
建物構造 |
木造 |
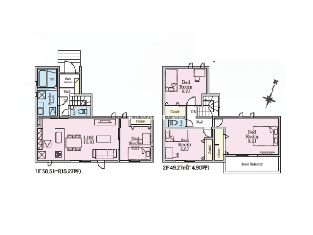
間取詳細 |
|
|---|---|---|---|
建ぺい率 |
40% |
容積率 |
80% |
地目 |
宅地 |
用途地域 |
第一種低層住居専用地域 |
取引態様 |
仲介 |
私道面積 |
- |
引渡時期 |
2026/06 上旬 |
土地権利 |
所有権 |
借地料 |
- |
借地期間 |
- |
セットバック |
建築確認番号 |
第25UDI1W建12413号 |
|
接道 |
北 6m(幅員) 公道 |
諸費用 |
|
学区 |
寺尾小学校 750m
高崎寺尾中学校 650m |
||
特色/設備 |
東京電力(電力自由)、公営水道、公共本下水、都市ガス、駐車場2台可、フラット35対応、フラット35S対応、浴室乾燥機付き、温水洗浄便座1F・2F、大型洗面化粧台(ハンドシャワー付き)、ユニットバス(1坪タイプ)、浄水器、24時間換気、カラーTVインターホン、システムキッチン(人造大理石使用)、洗面化粧台1階シャンプードレッサー、ユニットバス(セミオート給湯・換気扇)、全居室ペアガラス、アイディホーム施工、設計住宅性能評価書取得、建設住宅性能評価書取得、長期優良住宅 |
||
情報更新日 |
2026年02月16日 |
次回更新予定日 |
2026年02月17日 |
取引条件有効期限 |
2026年02月19日 |
※掲載されている物件データが現状と異なる場合は現状を優先します。
周辺地図MAP
株式会社高崎不動産COMPANY
所在地 |
群馬県高崎市下小鳥町67-5 |
||
|---|---|---|---|
免許番号 |
群馬県知事免許(4)第6934号 |
||
会員 |
(公社)全日本不動産協会
(公社)不動産保証協会
|
||
電話番号 |
027-370-0166 |
FAX番号 |
027-370-0167 |
営業時間 |
9:30 AM - 8:00 PM |
定休日 |
年末年始 |
