価格 |
3,180万円 |
||
|---|---|---|---|
間取 |
3LDK |
築年月 |
2026/03(1年未満) |
建物面積 |
105.99m²(32.06坪) |
土地面積 |
14,915m²(4,511.78坪) |
所在地 |
高崎市上並榎町 |
||
周辺環境 |
北高崎駅まで 徒歩22分 1,760m |
お電話でのお問い合わせ
物件番号:16140
お電話でお問い合わせの際は、物件番号をお伝えください。
027-370-0166
営業時間:9:30 AM - 8:00 PM
定休日:年末年始
ポイント
POINT
仲介手数料無料
☆物件詳細☆
高崎市上並榎町 新築一戸建て 西小学校 並榎中学校
《設備》
東京電力(電力自由) 公営水道 公共本下水 都市ガス
《教育施設》
西小学校まで約570m(徒歩7分) 並榎中学校まで約810m(徒歩10分) たいせいこども園まで約1400m(徒歩19分)
《商業施設》
ミニストップ高崎上並榎店まで約900m(徒歩12分) フレッセイ上並榎店まで約850m(徒歩12分) ドラッグスギ上並榎店まで約850m(徒歩12分) マルエドラッグ並榎店まで約1300m(徒歩18分) クスリのアオキ並榎店まで約1400m(徒歩21分) ミニストップ高崎ハナミズキ店まで約1500m(徒歩21分) セブンイレブン高崎筑縄店まで約1500m(徒歩21分)
《その他》
駐車場3台以上 フラット35対応 フラット35S対応 南道路 浴室乾燥機付き 大型洗面化粧台(ハンドシャワー付き) ユニットバス(1坪タイプ) システムキッチン 浄水器 対面キッチン 24時間換気 カラーTVインターホン システムキッチン(人造大理石使用) 洗面化粧台1階シャンプードレッサー ユニットバス(セミオート給湯・換気扇) 全居室ペアガラス 設計住宅性能評価書取得 建設住宅性能評価書取得 長期優良住宅
※現地に他の不動産屋さんの看板やのぼり旗が付いている物件もご紹介できます。現地販売業者さんは「売主」というわけではありません。アンケートなどの手続きをされますと当社での物件のご紹介が(仲介手数料無料)できなくなります。内覧をご希望のお客様は当社にてご案内をさせて頂きますのでお手数ですがTEL027-370-0166/090-6015-0166までお電話ください。ご連絡をお待ちしております。
☆物件詳細☆
高崎市上並榎町 新築一戸建て 西小学校 並榎中学校
《設備》
東京電力(電力自由) 公営水道 公共本下水 都市ガス
《教育施設》
西小学校まで約570m(徒歩7分) 並榎中学校まで約810m(徒歩10分) たいせいこども園まで約1400m(徒歩19分)
《商業施設》
ミニストップ高崎上並榎店まで約900m(徒歩12分) フレッセイ上並榎店まで約850m(徒歩12分) ドラッグスギ上並榎店まで約850m(徒歩12分) マルエドラッグ並榎店まで約1300m(徒歩18分) クスリのアオキ並榎店まで約1400m(徒歩21分) ミニストップ高崎ハナミズキ店まで約1500m(徒歩21分) セブンイレブン高崎筑縄店まで約1500m(徒歩21分)
《その他》
駐車場3台以上 フラット35対応 フラット35S対応 南道路 浴室乾燥機付き 大型洗面化粧台(ハンドシャワー付き) ユニットバス(1坪タイプ) システムキッチン 浄水器 対面キッチン 24時間換気 カラーTVインターホン システムキッチン(人造大理石使用) 洗面化粧台1階シャンプードレッサー ユニットバス(セミオート給湯・換気扇) 全居室ペアガラス 設計住宅性能評価書取得 建設住宅性能評価書取得 長期優良住宅
※現地に他の不動産屋さんの看板やのぼり旗が付いている物件もご紹介できます。現地販売業者さんは「売主」というわけではありません。アンケートなどの手続きをされますと当社での物件のご紹介が(仲介手数料無料)できなくなります。内覧をご希望のお客様は当社にてご案内をさせて頂きますのでお手数ですがTEL027-370-0166/090-6015-0166までお電話ください。ご連絡をお待ちしております。
物件詳細DETAIL
建物構造 |
木造 |
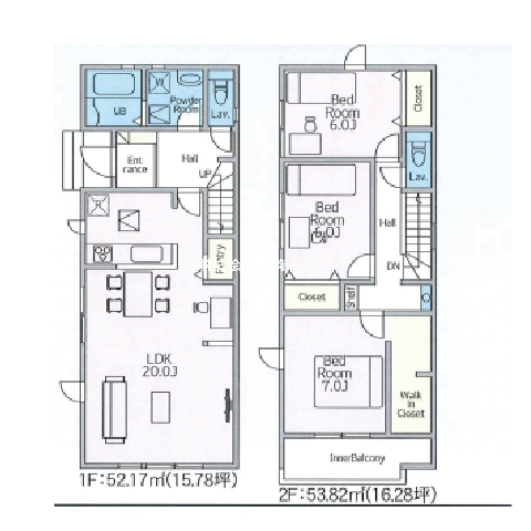
間取詳細 |
|
|---|---|---|---|
建ぺい率 |
60% |
容積率 |
200% |
地目 |
宅地 |
用途地域 |
第一種中高層住居専用地域 |
取引態様 |
仲介 |
私道面積 |
- |
引渡時期 |
2026/03 下旬 |
土地権利 |
所有権 |
借地料 |
- |
借地期間 |
- |
セットバック |
建築確認番号 |
||
接道 |
南西 7m(幅員) 公道 |
諸費用 |
|
学区 |
高崎西小学校 570m
高崎並榎中学校 810m |
||
特色/設備 |
東京電力(電力自由)、公営水道、公共本下水、都市ガス、駐車場3台以上、フラット35対応、フラット35S対応、南道路、浴室乾燥機付き、大型洗面化粧台(ハンドシャワー付き)、ユニットバス(1坪タイプ)、システムキッチン、浄水器、対面キッチン、24時間換気、カラーTVインターホン、システムキッチン(人造大理石使用)、洗面化粧台1階シャンプードレッサー、ユニットバス(セミオート給湯・換気扇)、全居室ペアガラス、設計住宅性能評価書取得、建設住宅性能評価書取得、長期優良住宅 |
||
情報更新日 |
2026年03月03日 |
次回更新予定日 |
2026年03月04日 |
取引条件有効期限 |
2026年03月06日 |
※掲載されている物件データが現状と異なる場合は現状を優先します。
周辺地図MAP
株式会社高崎不動産COMPANY
所在地 |
群馬県高崎市下小鳥町67-5 |
||
|---|---|---|---|
免許番号 |
群馬県知事免許(4)第6934号 |
||
会員 |
(公社)全日本不動産協会
(公社)不動産保証協会
|
||
電話番号 |
027-370-0166 |
FAX番号 |
027-370-0167 |
営業時間 |
9:30 AM - 8:00 PM |
定休日 |
年末年始 |
